Radius
Type
Sale/Rent
Price Range From Up to to
Min Price
Max Price
Bedrooms Beds Min Beds Max to Beds
Min Beds
Max Beds
Draw Search
Advanced Options:
Advanced Search >

Property Styles

Land Types

Furnished Types

Property Attributes

Close Advanced
View more options
« Back
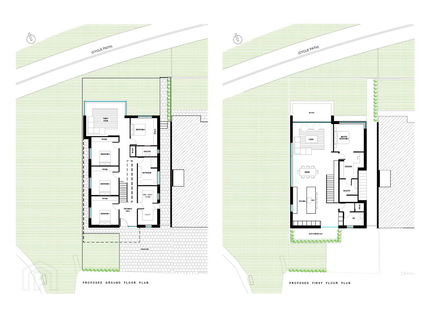
For sale | 5 Bed Detached House |
Price Not Provided

14 Blackrock Road Portrush , BT56 8EX

Price Not Provided

Key Information

Address 14 Blackrock Road, Portrush
Style Detached House
Status For sale
Price Price Not Provided
Bedrooms 5

Features

  • Uninterrupted Sea Views
  • Prime Location
  • Full Planning Permission
  • Private Parking

Prestigious Sea Front Site with Full Planning Permission - Portstewart Road, Portrush, overlooking West Strand Beach.

Additional Information

Causeway Coast Sales is proud to present, 14 Blackrock Road, Portrush. An exceptional opportunity to acquire a prestigious sea front site with full planning permission for a two-storey detached contemporary home, perfectly positioned just off the highly sought-after Portstewart Road (leading onto Ballyreagh Road). Boasting breath-taking, uninterrupted views over West Strand and Portrush Harbour, this exclusive location offers the ideal setting for a luxurious full-time residence or an elegant second home on the stunning Causeway Coast.

Within easy walking distance of Portrush town centre and the popular town of Portstewart is also only a short drive away, offering an array of shops, restaurants, and coastal attractions.

This prime coastal site represents a rare chance to build your dream home in one of Northern Ireland's most iconic and desirable seaside settings. With its dramatic views, unbeatable location, and significant development potential, this is truly a unique opportunity.

*Please note - visuals are for illustration purposes only*


Tenure: Freehold

Need some more information?

Fill in your details below and a member of our team will get back to you.

Please check you have entered all details correctly: