37 The Whins, Portrush
Radius
Type
Sale/Rent
Price Range From Up to to
Min Price
Max Price
Bedrooms Beds Min Beds Max to Beds
Min Beds
Max Beds
Draw Search
Advanced Options:
Advanced Search >

Property Styles

Land Types

Furnished Types

Property Attributes

Close Advanced
View more options
« Back
Sale agreed | 2 Bed Apartment |
Sale agreed £299,500

37 The Whins Portrush , BT56 8FG

Sale agreed £299,500

Key Information

Address 37 The Whins, Portrush
Style Apartment
Status Sale agreed
Price Price £299,500
Bedrooms 2
Bathrooms 2
Receptions 1
Heating Gas
EPC Rating C80/C80

Features

  • Central Location
  • Gas Central Heating
  • Off-street parking
  • Open-plan Living
  • Two Bedroom
  • Ground Floor

Causeway Coast Sales proudly presents, 37 The Whins. Located in the sought-after gated development of The Whins in the heart of Portrush.

Additional Information

This stylish 2-bedroom ground floor apartment offers modern, comfortable living. This property features an inviting open-plan kitchen and living area, and two bedrooms. Additional benefits include off-street parking, efficient gas central heating, and a private outdoor patio.

The apartment enjoys a prime location just a short stroll from West Strand Beach, Portrush Town Centre and Dhu Varren train station, providing convenient links to Belfast and Derry/Londonderry.

This well-presented apartment is perfectly suited as a full-time residence, holiday home, or investment opportunity. Early viewing is highly recommended.

Rates: £1,125.30 per annum (approx)
Service Charge: £1548 per annum (approx)

Tenure: Leasehold
Garden details: Terrace
Electricity supply: Mains
Heating: Gas Mains
Water supply: Mains
Sewerage: Mains
Accessibility measures: Level access, Step free access
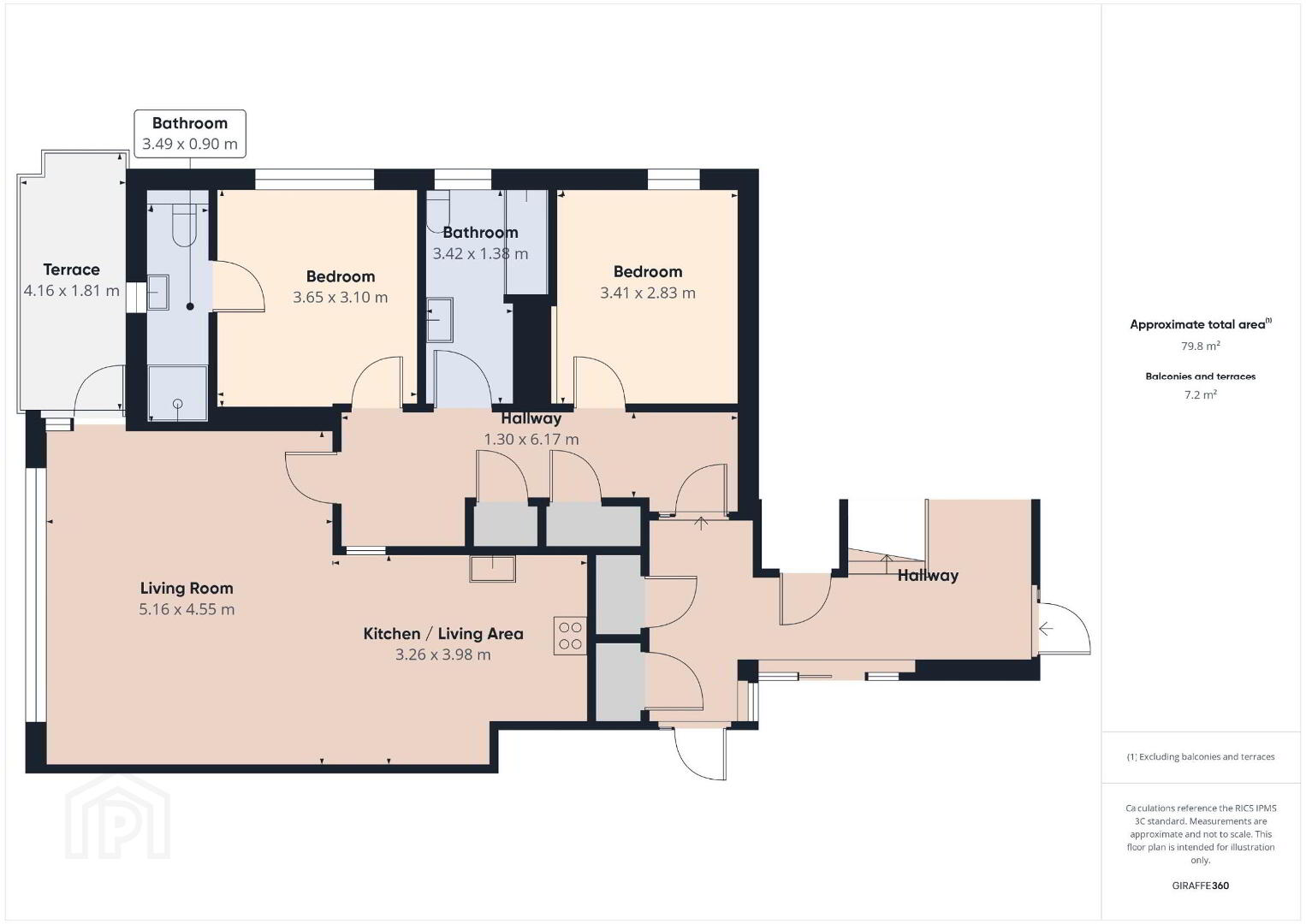
Entrance hall 6.17m x 1.3m (20'3 x 4'3)
Bright and airy entrance hallway with tiled flooring.
Kitchen/diner 3.98m x 3.26m (13'1 x 10'8)
Fully-fitted kitchen with high- and low-level storage. Integrated appliances. LED Spotlight lighting throughout. Tiled flooring.
Living room 4.55m x 5.16m (14'11 x 16'11)
Large uPVC window to allow natural lighting. uPVC glass door leading to private terrace. Tiled flooring throughout. LED spotlights.
Master bedroom 3.1m x 3.65m (10'2 x 12'0)
Spacious primary bedroom with uPVC window to allow natural lighting.
En-suite 0.9m x 3.49m (2'11 x 11'5)
Electric shower. Low-flushing toilet. Pedestal wash hand basin. Tiled flooring. uPVC window.
Bathroom 1.38m x 3.42m (4'6 x 11'3)
Over bath shower. Low-flushing toilet. Wall mounted wash hand basin with towel rail. Tiled flooring. uPVC frosted glass window.
Bedroom 1 2.83m x 3.41m (9'3 x 11'2)
Twin bedroom. uPVC window.

Need some more information?

Fill in your details below and a member of our team will get back to you.

Please check you have entered all details correctly: